
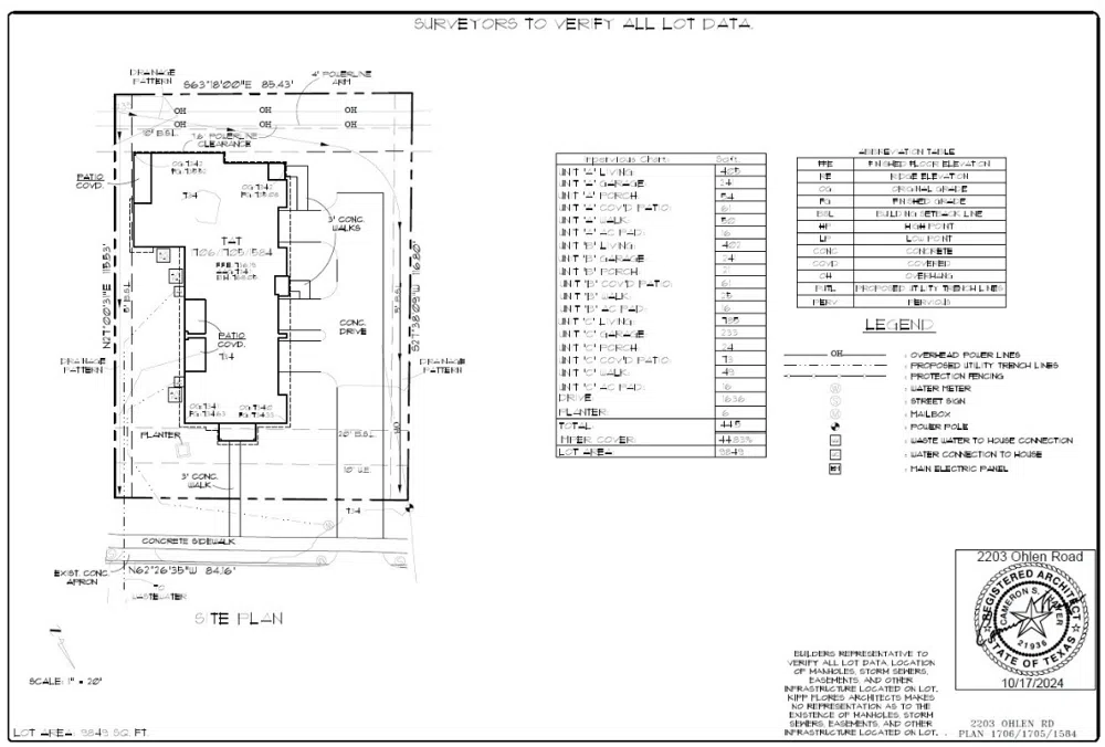
Shovel Ready - Build 3 Units on this stellar lot in North Austin - Plans are stamped and ready to start! Seller financing is available for this deal both the purchase and the construction. Unlock the potential of this expansive 2-lot land parcel, strategically located on Ohlen Road. Boasting vast development potential, this property offers the opportunity to build three impressive, 3-story units, making it an ideal investment for investors and developers. The potential to build three, 3-story units opens up a world of possibilities for maximizing the use of this property.Situated on Ohlen Road, in the desirable Wooten neighborhood, this property enjoys a prime location in an area of high demand. Conveniently accessible to major highways, shopping centers, dining options, and entertainment venues, this development offers residents a convenient and fulfilling lifestyle. The prospect of constructing three, 3-story units promises excellent investment potential. The demand for housing in the area makes this an opportune time to secure this development deal. Developers will appreciate the potential for maximizing returns while providing quality homes for future residents. Don't miss out on this exceptional development opportunity at 2203 Ohlen Road. For more information and details, including zoning information, architectural plans, and potential ROI, reach out to the listing agent. Secure your place in Austin's thriving real estate market with this exciting development deal.
Based on information submitted to the MLS GRID as of 2024-11-20 00:00:00 UTC. All data is obtained from various sources and may not have been verified by broker or MLS GRID. Supplied Open House Information is subject to change without notice. All information should be independently reviewed and verified for accuracy. Properties may or may not be listed by the office/agent presenting the information.
The information being provided is for consumers' personal, non-commercial use and may not be used for any purpose other than to identify prospective properties consumers may be interested in purchasing. Based on information from the Austin Board of REALTORS®. Neither the Board nor ACTRIS guarantees or is in any way responsible for its accuracy. All data is provided "AS IS" and with all faults. Data maintained by the Board or ACTRIS may not reflect all real estate activity in the market.
Last Updated: . Source: ACTRIS
Provided By
Listing Agent: Michael Estes (#494994), Phone: (512) 554-8554
Listing Office: Trend Real Estate (#701845)
Provided By (Buyer)
Buyer's Agent: Bryan McLane (#620413)
